Eigenschappen
| Typenummer | 4 x 3 + 2Z |
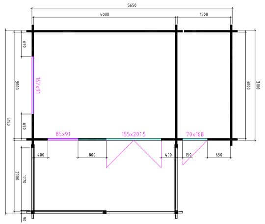
| Breedte | 5650 mm |
| Diepte | 5150 mm |
| Oppervlakte | 25.92 m² |
| Wanddikte | 50 mm |
| Zijwandhoogte | 2080 mm |
| Nokhoogte | 2650 mm |
| Ramen | 1x Dubbel draaikiep raam 1x Enkel draaikiep raam |
| Deuren | 1x dubbele deur 1x Zijaanbouwdeur |
| Glas | BC-kwaliteit |
| Dak | Zadeldak |
| Houtsoort | Noord-Europees vuren kwaliteitshout |
| Bouwsysteem | Blokhutsysteem |
Opties
- Behandeling
- Onbehandeld / blank
- Dompel geïmpregneerd
- Exterieur gecoat (2-laags, buitenzijde)
- Compleet gecoat (2-laags, binnen- en buitenzijde)
- Vloer / fundament
- Onbehandeld
- Geïmpregneerd
- Dakbedekking
- Standaard dakshingels
- Beverstaart dakshingels
- Onduvilla dakpanplaten (standaard kleur)
- Onduvilla dakpanplaten (speciale kleur)
- Stalen dakpanplaten
- Afwateringsbalken
- Vuren geïmpregneerd
- Hardhout
- Overige accessoires
- Dakspijkers (voor de dakplanken)
- Asfaltnagels (voor de dakshingels)
- PVC dakgootset (bruin)
- Setje ventilatieroosters (1x RVS / 1x kunststof)
- Stormverankeringsset (4 stuks)
Exterieur gecoat
Bij een exterieure coating worden de wanden van het product voorzien van een 2-laagse behandeling aan de buitenzijde. Bij een luifel worden de zichtbare binnenwanden ook voorzien van coating.
Compleet gecoat
Hier worden zowel de binnen- als de buitenzijden van de wanden gecoat, maar daarnaast ook de dakbalken, dakplanken en de ramen & deuren.
Hoofdkleuren
In ons assortiment zitten 10 standaard kleuren om de wanden van onze blokhutten te coaten, ook wel hoofdkleuren genoemd. Hieronder een overzicht van al ons RAL-kleuren als hoofdkleur:
- Zwart (RAL 9005)
- Donkergrijs (RAL 7011)
- Lichtgrijs (RAL 7040)
- Crème wit (RAL 9001)
- Wit (RAL 9010)
- Blauw (RAL 5000)
- Groen (RAL 6007)
- Zweeds rood
- Transparant grenen
- Transparant Douglas

Specificaties
- Best verkrijgbare prijs-kwaliteitverhouding in de markt
- Blanke en geïmpregneerde blokhutten veelal uit voorraad leverbaar
- Marktleider en specialist in gecoate blokhutten (in kleur)
- Meest innovatieve speler op de markt in zowel model als uitvoering
- Meer dan 20 jaar ervaring in het produceren en leveren van blokhutten
- Eén van de grootste Europese leveranciers op het gebied van maatwerk
- Wij werken uitsluitend met gespecialiseerde en erkende dealers
- Al meer dan 70 jaar een echt familiebedrijf
- Betrouwbare en Achterhoekse nuchterheid
Webwinkelkeur gecertificeerd















