Geïsoleerde Aluminium vouwwanden
Wij fabriceren aluminium vouwwanden / harmonicadeuren op maat in onze werkplaats in Hoogwoud. Deze wanden worden naar specificaties van de klant geproduceerd, zodat we altijd de hoogste kwaliteit kunnen garanderen en u als klant altijd de juiste vouwwand heeft. Wij hebben een opstelling te bezichtigen in onze showroom.
De vouwwand is inclusief:
- Op maat gemaakte vouwwand, bijna alle afmetingen zijn mogelijk;
- De panelen zijn maximaal 100cm breed;
- Inclusief meerpuntsluiting;
- Indien u een oneven aantal delen heeft is er altijd een loopdeur;
- Bij een even aantal panelen is een loopdeur een optie;
- De panelen kunnen naar links, naar rechts of naar links en rechts schuiven;
- Standaard kleuren zijn alle RAL kleuren waaronder bi-color, verschillende kleuren binnen en buiten;
- De beglazing dikte 18-42 mm mogelijk;
- Levertijd +- 8/10 weken;
- Montage is mogelijk.
Wij kunnen de montage voorzien van in een door derden gemaakt stelkozijn, excl afwerking
binnen/buiten, excl CV- en elektrawerk, excl schilder- en stucwerk.
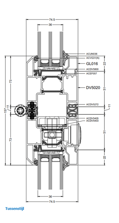
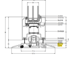
Specificaties
- Maximaal vleugelgewicht 100 kg
- Maximale vleugelhoogte 2,5 meter
- Beglazing 8 - 49 mm
- Inbouwdiepte buitenkader 74,5 mm
- Inbouwdiepte vleugel 74,5 mm
- 3K3-kamersysteem
- Inbraakklasse RC2
- Vlakke dorpel
- Hoekopstelling 90°
- Isolatiewaarde Uf DVi tot 1.5 W/m²K - DV: tot 1.8 W/m²K (NBN EN ISO 10077-2)
- Isolatiewaarde Uw 1.3 W/m²K (afm. 3500mm x 2500mm; UG: 1.0W/m²K & PSI: 0.036W/mK - profil DV5010-DV5020(DVi)
- Waterdichtheid E1050 (EN12208)
- Luchtdichtheid 2 (EN12207)
- Weerstand tegen wind C3 (EN12210
Webwinkelkeur gecertificeerd

























